Skip to content
The Sapphire
Home
About Us
Bitterroot Valley Log
Log Home Gallery
Model Home
Current Projects
Log Intergrated Frame Homes
Log Siding
Log Home Supplies
Log Finish
Lifeline Accents
Lifeline Advance
Lifeline Acrylic
Lifeline Exterior
Log Maintenance
Armor-Guard
Cobra Rods
E-Wood
Log Wash
Step-by-Step
Wood ReNew
Log Sealants
Backer Rod
Grip Strip
Check Mate 2
Log End Seal
Energy Seal
M-Balm
Chink-Paint
Perma-Chink
Shell-Guard RTU
Shell-Guard
Woodsmen
Lifeline Interior
Lifeline Ultra-1
Lifeline Ultra-2
Accents
Doors
Fences
Heavy Timber
Log Railings
Feedback
Log Home Plans
The Big Sky
The Angel Fire
The Bannack
The Big Creek
The Bitterroot
The Blackfoot
Bridgeton
East Fork
The Fish Creek
Garage Apartment
The Grand Teton
Harrison Plan
Huron
Kootenai
Lakeview
The Lost Trail
The Pintler
Plumb Creek
The Powder Mountain
Redrock
The River Bend
The River House
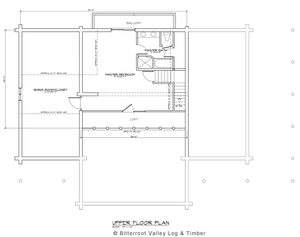
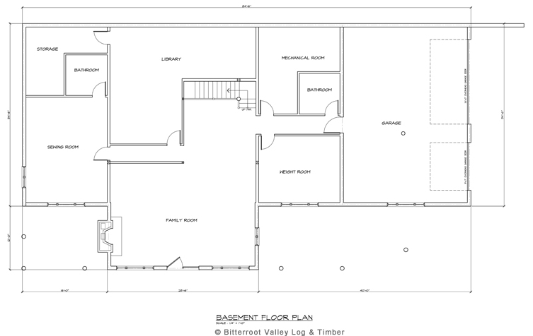
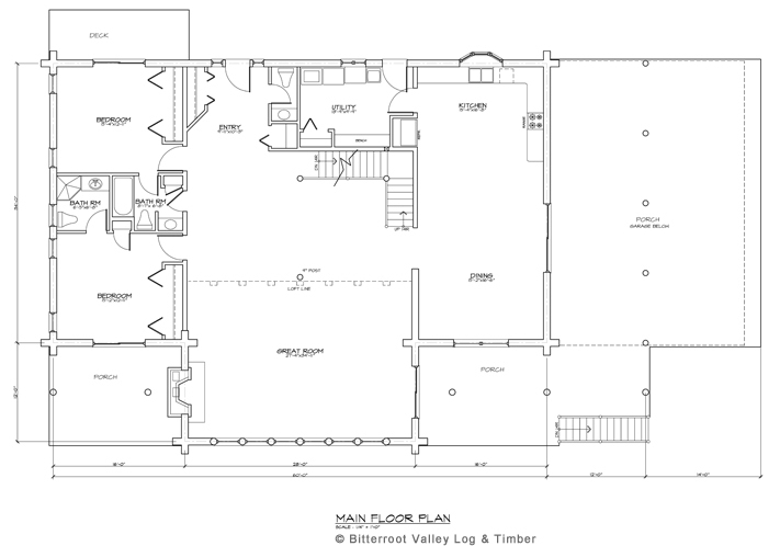
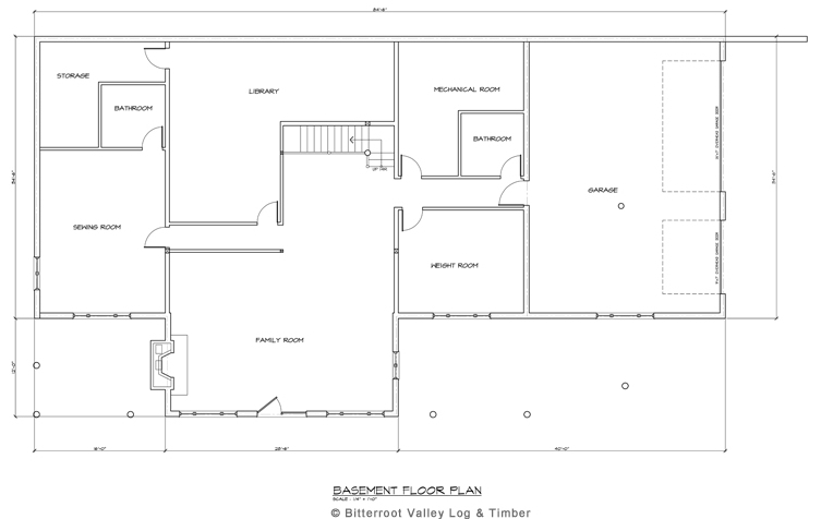
The Sapphire
Smoky Mountain
The Solitude
The Star Valley
The Tin Cup
The Tahoe
The Trapper Peak
The Valley Springs
The Wasatch
How To Find Us